2540 Lockwood Dr, Winston-Salem, NC 27103
Toggle Navigation
Images
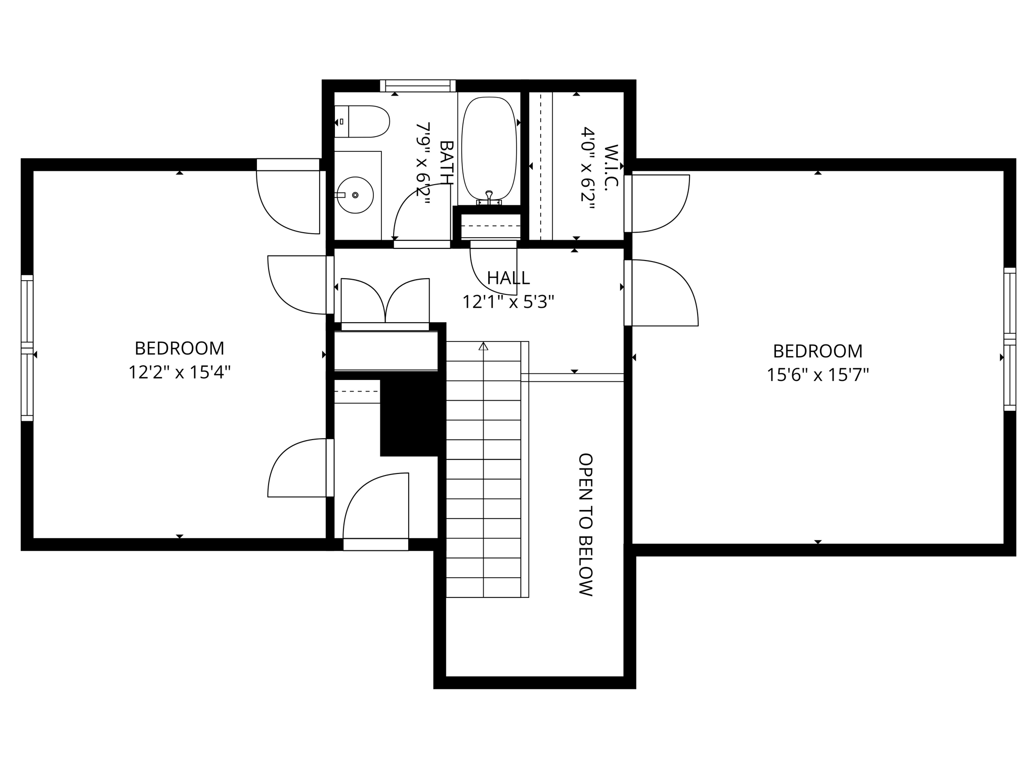
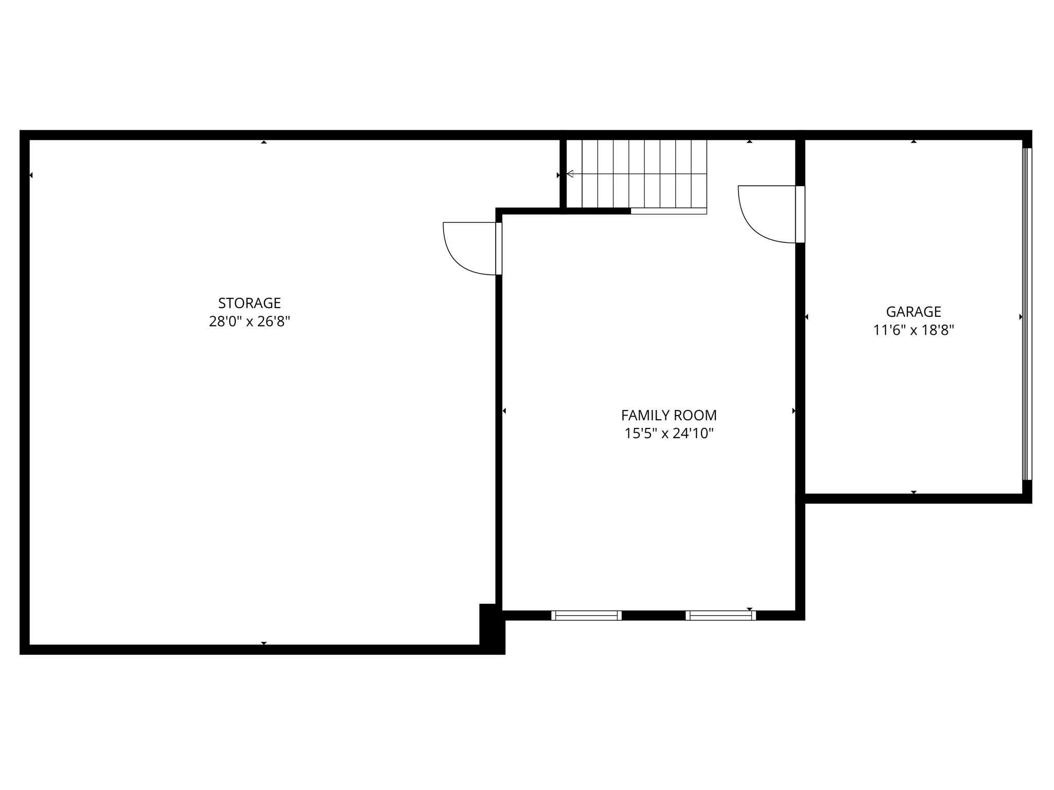
Floor Plans
Map
Previous Photo
Next Photo
Images
Slideshow
Photo Grid
Hide
Previous
Next
Show more
Floor Plans
Slideshow
Photo Grid
Hide
Previous
Next